BETEX
Hotline: 098 712 3398 Email: pkd@mike.vn 🇻🇳 🇬🇧
BETEX
Xylanh thủy lực

Kích thủy lực BETEX NDAC 2 chiều, loại đẩy kéo, vỏ thép

★ 5.0 (5 đánh giá) • Đã bán 4
Lượt xem: 0
Nhập khẩu từ: Hà Lan
Xylanh thủy lực đẩy kéo có vỏ bằng thép, phủ nitrite chống bám bẩn. Hoạt động ở áp suất 700 bar. Hàng chính hãng BETEX Hà Lan. Có nhiều model khác nhau hành trình và tải trọng. Tùy chọn thuộc về bạn.
SKU: NDAC
Trạng thái kho: Đặt hàng chờ nhập 4-8 tuần
Vui lòng liên hệ để được báo giá và tình trạng hàng.
Mô tả

Dòng kích thủy lực BETEX NDAC hai chiều này dùng cho mục đích nâng - hạ chủ động. BETEX NDAC dùng cho chế tạo các máy ép, cầu nâng hay bàn nâng. Đầu của xylanh có tiện sẵn cả ren trong và ren ngoài, bình thường chúng được bọc lớp mũ cao su. Khi dùng đến cơ cấu lắp ghép, tiện ích có sẵn ren sẽ phát huy.

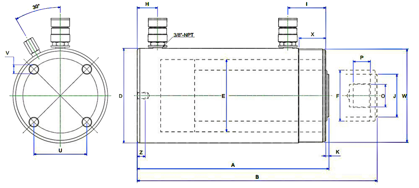
Bản vẽ kỹ thuật:

Kích thủy lực BETEX NDAC 2 chiều, loại đẩy kéo, vỏ thép Kích thủy lực BETEX NDAC 2 chiều, loại đẩy kéo, vỏ thép

Xylanh thủy lực 2 chiều thích hợp cho các ứng dụng cần kiểm soát cả chiều đẩy và chiều kéo. Loại bơm phù hợp cũng phải là bơm Double acting, luôn có 1 đường dầu đi, 1 đường dầu về độc lập với nhau. Trên đỉnh xylanh, gần với khớp nối nhanh có 1 van an toàn, chống quá áp và piston tuột ra ngoài.

  • Ngõ vào - ra dầu: 3/8 inch NPT.
  • Vỏ thép, phủ nitrid, chống bám bẩn
  • Có cao su bịt đầu ren.
  • Áp suất làm việc max: 700 bar.

Khi bơm hết hành trình, dầu sẽ thoát ra khỏi đường này và làm giảm áp trong khoang chứa (Không phải nó bị xì dầu). Tất cả đều hoạt động ở áp suất 700 bar, tương đương 10000psi.

Kích thủy lực 2 chiều NDAC

BETEX NDAC chuyên sử dụng cho các ứng dụng ĐẨY - KÉO, tải trọng đẩy lớn hơn tải trọng kéo. NDAC xyalnh thủy lực 2 chiều.

Model Tải trọng Hành trình Dung tích dầu cm3 Chiều cao đóng Đk thân
Đẩy kéo mm Đẩy kéo mm Ømm
NDAC1010 10 4 251 399 144 408 78
NDAC1012 10 4 301 478 172 458 78
NDAC2512 25 10 305 1175 450 476.5 103
NDAC308 30 14 209 923 426 387 103
NDAC3014 30 14 368 1625 751 547 103
NDAC506 50 14 150 1062 309 331 127
NDAC5013 50 14 330 2338 680 511 127
NDAC5018 50 14 470 3330 968 675 127
NDAC756 75 29.5 155 1752 654 348 152
NDAC7513 75 29.5 333 3764 1405 526 152
NDAC1006 100 43 160 2289 1155 358 177
NDAC10013 100 43 330 4721 2383 528 177

Tuỳ theo model khác nhau, kích thước ren sẽ khác nhau và đường kính lỗ có sẵn trên đỉnh kích cũng khác. Bạn hãy yêu cầu kích thước lắp ghép chi tiết trước khi quyết định mua. Chúng tôi cung cấp đầy đủ bản vẽ khi có đề nghị. Tất cả các khớp nối nhanh gắn sẵn đều thuộc loại NPT 3/8".


Thuyết minh kỹ thuật

Đã bao gồm khớp nối nhanh 3/8' NPT
Áp suất làm việc max: 700 bars.
Khớp nối nhanh đầu cái gắn sẵn NPT 3/8 inch, có nắp cao su.
Hình ảnh có tính minh họa

Bảng giá & Đặt hàng
Mã SKU Kho Chiều cao đóng Dung tích xylanh Hành trình Tải kéo (Pull) Tải trọng Đk đầu tuýp
NDAC 1006 358mm Push: 2289- Pull: 1155 160mm 43 tấn 100 tấn 177mm
NDAC 10013 528mm Push: 4721- Pull: 2383 330mm 43 tấn 100 tấn 177mm
NDAC 5013 511mm Push: 2338- Pull: 680 330mm 14 tấn 50 tấn 127mm
NDAC 5018 675mm Push: 3330- Pull: 968 470mm 14 tấn 50 tấn 127mm
NDAC 756 348mm Push: 1752- Pull: 654 155mm 29,5 tấn 75 tấn 152mm
NDAC 7513 526mm Push: 3764- Pull: 1405 333mm 29,5 tấn 75 tấn 152mm
NDAC 2512 476.5mm Push: 1175- Pull: 450 305mm 10 tấn 25 tấn 103mm
NDAC 308 387mm Push: 923- Pull: 426 209mm 14 tấn 30 tấn 103mm
NDAC 3014 547mm Push: 1625- Pull: 715 368mm 14 tấn 30 tấn 103mm
NDAC 506 331mm Push: 1062- Pull: 309 150mm 14 tấn 50 tấn 127mm
NDAC 1010 408mm Push: 399 - Pull: 144 251mm 4 tấn 10 tấn 78mm
NDAC 1012 458mm Push: 478 - Pull: 172 301mm 4 tấn 10 tấn 78mm

Đánh giá sản phẩm

Dựa trên 5 đánh giá
5.0
Tổng quan
5★ 5
4★ 0
3★ 0
2★ 0
1★ 0
Vui lòng đăng nhập để gửi đánh giá.
Tằng Chỉ Oán
2024-08-20 10:02
★ 5
BETEX NDAC hoạt động với bơm double acting, có nghĩa là bạn sẽ có 1 đường dầu vào và 1 đường dầu ra độc lập với nhau. Điều này giúp kiểm soát cả chiều đẩy và kéo một cách hiệu quả.
Lâm Lê
2024-08-17 16:17
★ 5
Series này có rất nhiều mã hàng, từ 10 tấn cho đến 100 tấn đều có, điểm khác biệt là hành trình và chiều cao đóng 😜
Cường PK
2024-08-08 15:15
★ 5
Dòng kích thủy lực BETEX NDAC hai chiều cho phép kiểm soát chính xác cả chiều đẩy và kéo, hữu ích trong các ứng dụng như máy ép, cầu nâng, hay bàn nâng. Việc sử dụng nó đòi hỏi một hệ thống bơm phù hợp và kiến thức về cơ chế thủy lực, áp suất 700bar.
Như Quỳnh LA
2024-08-01 09:44
★ 5
Kích thủy lực BETEX NDAC có HS code là 8431
Phương HTQ
2024-08-01 09:33
★ 5
Có thể gọi em ấy là Kích thủy lực, Xylanh thủy lực, Vam...
Sản phẩm vừa xem
Chưa có
096 779 3398 | 098 712 3398 | 096 478 3398 | 096 717 0718
BETEX - Bega Special Tools - Schaeffler Smart Maintenance Tools - Phân phối bởi Minh Khang Vinatools
👉 Tầng 1, Shop Thương mại số S2.0301S08, Đường Cầu Vồng 3, KDT Vinhomes Grand Park, 512 Nguyễn Xiển, Phường Long Bình, Thành phố Hồ Chí Minh, Việt Nam
👉 Vinhomes Grand Park, 512 Nguyễn Xiển, Phường Long Bình, Thành phố Hồ Chí Minh, Việt Nam